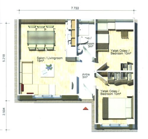
Surface: 47m²
Duration: 6 weeks
Gardenya
A practical and budget-friendly option, this social house offers contemporary design and essential amenities for family living.
GROUND FLOOR PLAN

Antre
Livingroom
Bedroom
Bathroom
Bathroom
(3m²)
(19m²)
(10m²)
(10m²)
(3m²)
Interested in our product?
Are you looking for a modern, sustainable, and affordable housing solution? Our prefab homes offer the perfect combination of comfort and style. Whether you are interested in a luxury flat, a high luxury home, or a social house, we have the ideal option for you.
Fill out our contact form to place an order or to get more information. Our team is ready to help you realize your dream home.




