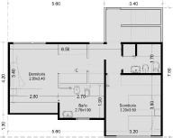
106 Expandable model – 1056

107 Expandable model – 1320SF
November 15, 2024
103 Expandable model – 814SF-3B
November 15, 2024
106 Expandable model – 1056
This website uses cookies to improve your experience. By using this website you agree to our Data Protection Policy.
Read more