104-PSE 952 SF- 2BR-CONCEPT

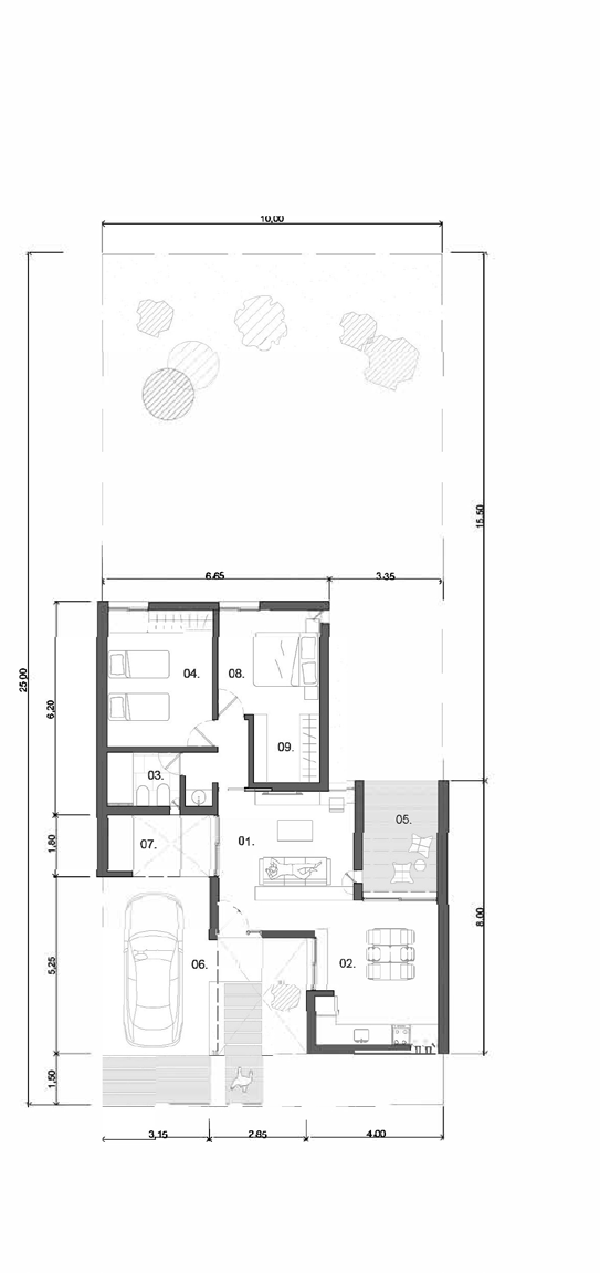
105 – PSE 1232 SF- 3BR-CONCEPT
November 15, 2024
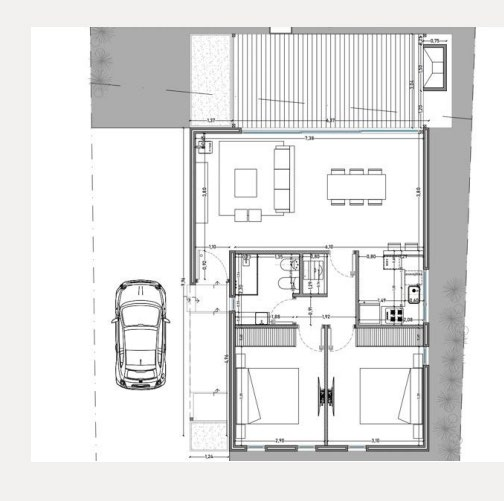
110-PSE 1330 SF- 3BR-CONCEPT
November 15, 2024
104-PSE 952 SF- 2BR-CONCEPT
This website uses cookies to improve your experience. By using this website you agree to our Data Protection Policy.
Read more