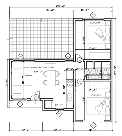
101 Expandable model – 594SF

102 Expandable model – 726SF
November 15, 2024
100-Expandable model – 506SF
November 15, 2024
101 Expandable model – 594SF
This website uses cookies to improve your experience. By using this website you agree to our Data Protection Policy.
Read more